Комплектация | Кол-во | Единица измерения | ||
1 | Башня | Выполнена из четырёх клеёных брусьев, окрашенных в коричневый цвет, сечением 100х100 мм и высотой 2500 мм. Пол из ламинированной фанеры с антискользящим покрытием размером 780х780 мм толщиной 18 мм. Башня без крыши, украшена стилизованными декоративными арками, кромки фанеры тщательно шлифованы, окрашены с нанесением принта. Отметка пола башни от планировочной отметки площадки 900 мм | 2 | комплект |
2 | Горка h900 | Скат горки шириной 530 мм, выполнен из нержавеющей стали t 1,5 мм, - цельного листа, борта выполнены из влагостойкой фанеры толщиной 24 мм, кромки фанеры тщательно шлифованы, борта окрашены при помощи УФ печати. Ограждения стартового участка горки, выполнены из влагостойкой фанеры толщиной 18 мм, фанера окрашена при помощи УФ печати. Опорный каркас горки выполнен из профиля 40х25 и труб диаметром 32 мм (металл имеет плавные радиусы и тщательную обработку швов, покрыт порошковой краской). Габарит горки 530х 1680х900(h). Горка поставляется в собранном виде. | 1 | комплект |
3 | Ограждения башен | Ограждения башен двух видов: стальные - из труб диаметром 27 мм и профиля 15х15 мм (580х450 мм) и из влагостойкой фанеры толщиной 18 мм с нанесением принта. | 3 | шт. |
4 | Лестница 900 | Лестница состоит из бортов, выполненных из фанеры влагостойкой толщиной 24 мм, и четырех ступенек, выполненных из ламинированной анти-скользящей фанеры, толщиной 18 мм, ширина ступней 560 мм. Пространство между ступенями закрыто экранами из влагостойкой фанеры толщиной 18 мм, между ступенью и экраном имеется щель для слива дождевой воды. Ступени и экраны вставляются в пазы бортов лестницы. Борта стягиваются шпильками диаметром 10 мм. Кромки фанеры тщательно шлифованы, борта окрашены при помощи УФ печати. Лестница монтируется к брусу башни и на входе-к двум клеёным брусам 100х100 мм высота 800 мм, брус окрашен в коричневый цвет. Лестница поставляется в собранном виде. | 1 | комплект |
5 | Перила лестницы | Выполнены влагостойкой фанеры толщиной 24 мм. В комплекте 2 шт. перил. | 1 | комплект |
6 | Мост прямой 1500 | Мост состоит из сварного каркаса из стальной профильной трубы 40х40х2 и трубы 40х25х2мм, а также стальных пластин шириной 40мм длиной 120 мм (металл имеет плавные радиусы и тщательную обработку швов, окрашен порошковой краской) и половиц из влагостойкой ламинированной фанеры (толщиной 18 мм) с анти-скользящим покрытием 780х373х18 -4 шт. Мост поставляется в сборе. Габарит 1500х780х140мм. | 1 | комплект |
7 | Ограждения прямого моста 1500 | Выполнены из влагостойкой фанеры толщиной 18 мм, кромки фанеры тщательно шлифованы, окрашены при помощи УФ печати. Габариты 1500х700х18 мм. Комплект – 2 шт. | 1 | комплект |
8 | Скалолаз | Скалолаз состоит из щита из влагостойкой фанеры, толщиной 18 мм, размер 780х580 мм, с прорезями. Окрашен с нанесением принта. | 1 | шт. |
9 | Игровая панель (щит-лабиринт) | Выполнен в виде сборной конструкции, которая состоит щита перемещающихся ползунков. Щит - из влагостойкой фанеры толщиной 18мм. Габарит щита 780х580х18 мм. В щите выполнены прорези, по которым перемещаются ползунки. Ползунки выполнены как соединение двух кругов из влагостойкой фанеры толщиной 18мм, диаметр кругов 100мм. Круги соединены между собой болтом через трубу ПВХ 25мм. Щит окрашен с нанесением принта. | 1 | комплект |
10 | Принт Коты | Основной цвет принта голубой – небо с облаками, на фоне неба – мультяшные, сумасшедшие, разноцветные коты и птички. | ||
- Артикул
ДИК 1.15.06-11
- Артикул (старый)
ДИК 1506.11
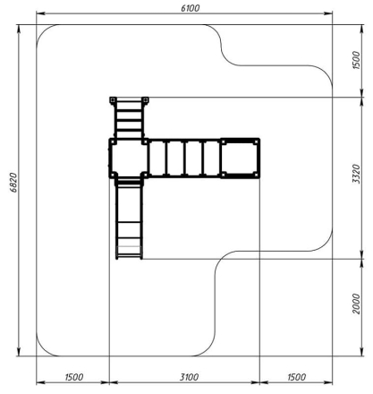
- Габариты (ШхДхВ)
3100х3320х2650
- Зона безопасности, мм
6100х6820
- Высота падения, мм
900
- Вес, кг
290,60
- Скат горки
H=900 (металлический скат)
- Возрастные ограничения
от 3 до 7 лет, весом не более 70 кг
- Официальная гарантия
Гарантийный срок на изделия от 12 месяцев
- Сертификат
RU №0208095 №: RU C-RU.AE83.B.00092/20 Сертификат соответствия (Детские игровые комплексы)
Доставка по городу
Самовывоз
Стоимость установки рассчитает менеджер






